top of page
(11) 9 5638-1341


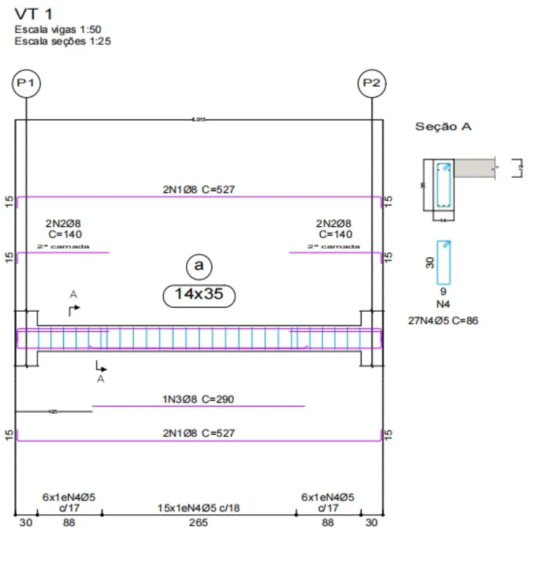
Projeto Estrutural
O projeto estrutural é fundamental para garantir a segurança e a durabilidade de qualquer construção. Por isso, nossa equipe técnica elabora cálculos e dimensionamentos precisos, levando em conta cargas, tipos de solo, sistema construtivo e características específicas do projeto.
Utilizamos ferramentas e metodologias atualizadas para desenvolver soluções que equilibrem resistência, economia de materiais e facilidade executiva, assegurando um desempenho estrutural eficiente e em conformidade com todas as normas técnicas.
_page-0001.jpg)

bottom of page

.png)
